6 locali in vendita

Salerno, Via Madonna di Fatima - Pastena
€ 490.000
6 locali 6 locali
190 Mq 190 Mq
2 bagni 2 bagni

6 locali in vendita

Salerno, Via Madonna di Fatima - Pastena

Descrizione annuncio

PASTENA

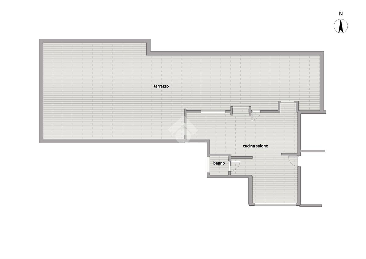
Ampio appartamento con attico e terrazzo di copertura. In una delle aree più richieste di Salerno, nel cuore di Pastena, proponiamo in vendita appartamento di ampia metratura, ideale per famiglie numerose o per chi desidera spazi generosi e versatili.

L’immobile, posto all'ultimo piano in stabile dotato di servizio di portierato, si compone da:

Doppio ingresso, che consente una possibile divisione degli ambienti o l’utilizzo come soluzione studio/abitazioneCucina abitabile;

Salone doppio, luminoso e accogliente;

Quattro camere da letto, perfette per ogni esigenza abitativa;

Due bagni;

Ripostiglio;

Completano la proprietà un terrazzo di copertura esclusivo, che rappresenta un vero valore aggiunto: ampio e panoramico, ospita un ambiente vivibile con bagno, ideale come zona relax, studio indipendente o spazio ospiti.

La posizione strategica, a pochi passi da servizi, scuole, attività commerciali e collegamenti, rende questa soluzione unica nel suo genere.

Un’opportunità rara per chi cerca comfort, spazio e indipendenza in una delle zone più comode della città.

Mostra tutto

Nelle vicinanze

Trasporto pubblico Trasporto pubblico
Pastena
Pastena
430 m
Torrione
Torrione
910 m
Stazione Centrale
Stazione Centrale
2,4 Km
Salerno
2,6 Km
Scuole Scuole
Scuole
550 m
Scuola Media Statale "Lanzalone Posidonia"
1,1 Km
Scuola elementare Medaglie D'oro
2,9 Km
Farmacia Farmacia
Ferrara
2,5 Km
Ospedali Ospedali
Casa di Cura Villa del Sole
2,5 Km
Supermercati Supermercati
Carrefour Market
380 m
Sole365
750 m
Todis
1,3 Km
Pick up
1,3 Km
Euro spin
1,8 Km
Negozi Negozi
OVS
2,6 Km
Maja desnuda
2,6 Km
United colors of Benetton
2,6 Km
Candida
2,7 Km
Bar Bar
A testa in giu (tabacos)
720 m
Ivan
1,8 Km
Grano Bakery Bar
2,5 Km
Bar
2,6 Km
Baraonda
2,7 Km
Ristoranti Ristoranti
II Gusto Della Notte Salerno
270 m
Pizzeria D’Asporo Mr. Crocche
840 m
Corner pizza
1,1 Km
Ivan
2,4 Km
Gastronomia Salumeria del corso
2,6 Km
Mostra tutto

Caratteristiche

Rif.:
61150336
Piano:
6 di 6 con ascensore (Piano alto)
Terrazzi:
1
Camere da letto:
4
Arredamento:
Assente
Condizionamento:
Autonomo
Mostra tutto
Prezzo Prezzo
€ 490.000
Rata mutuo Rata mutuo
€ 2.328 / mese
Spese annue Spese annue
€ 1.440
Proponi il tuo prezzoProponi il tuo prezzo

Classe Energetica

G
G
G
G
G
G
G
G
G
EP globale non rinnovabile:
175.00 kW h/m² anno
EP globale rinnovabile:
175.00 kW h/m² anno
EP invernale del fabbricato:
EP estiva del fabbricato:
Anno di costruzione:
1968
Riscaldamento:
Autonomo
Tipo impianto:
A radiatori
Tipo alimentazione:
Metano

Ti interessa visionare l'immobile?

Fissa un appuntamento  Fissa un appuntamento

Richiedi informazioni

Clicca su Leggi per aprire l'informativa
* Questi campi sono obbligatori

Calcola il tuo mutuo

Semplice e senza impegno
Anticipo

( % )
Mutuo

( % )

pochi semplici passi

inserisci i tuoi dati
Questionario completato
Grazie per aver richiesto un appuntamento senza impegno con un nostro Consulente del Credito e Assicurativo.

Hai inserito correttamente tutti i dati necessari e a breve riceverai una e-mail con un link da convalidare per inviare i tuoi dati.
Affiliato
Studio Pastena Srl
Via Trento, 26 84129 Salerno (SA)

Il nostro staff


  • Luciano Capaccio
    Affiliato

  • Roberta Falcone
    Responsabile

  • Massimiliano D'Antuono
    Collaboratore
Via Trento, 26 84129 Salerno (SA)
Zona: Pastena-Torrione
Mostra su mappa
Orari: DAL LUNEDI AL VENERDI 9.00-13.00--16.00-20.00; SABATO 9.00-13.00.
Affiliato
Studio Pastena Srl
Via Trento, 26 84129 Salerno (SA)

2026 Tecnocasa Franchising S.p.A. - P. IVA 08365160152 - Via Monte Bianco 60/A 20089 Rozzano (MI). Ogni agenzia ha un proprio titolare ed è autonoma. Privacy policy | Policy utilizzo | Cookie policy