Trilocale in vendita

Salerno, Via Gian Vincenzo de Ruggiero - Pastena
€ 180.000
3 locali 3 locali
81 Mq 81 Mq
2 bagni 2 bagni

Trilocale in vendita

Salerno, Via Gian Vincenzo de Ruggiero - Pastena

Descrizione annuncio

PASTENA

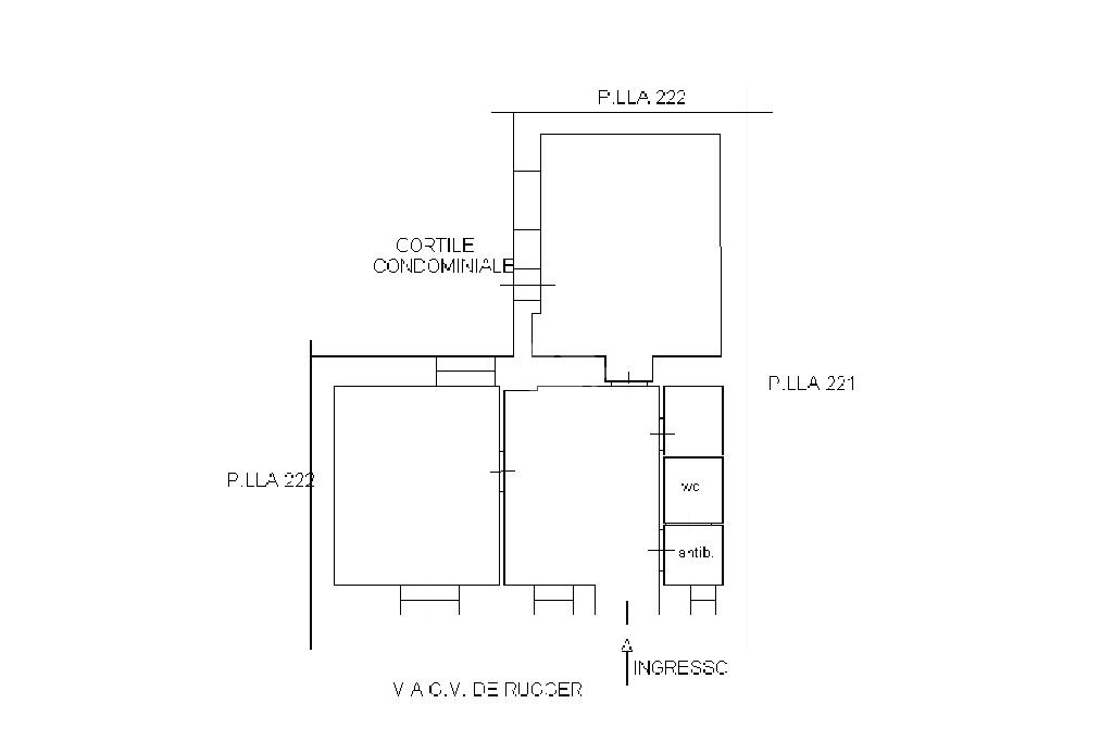
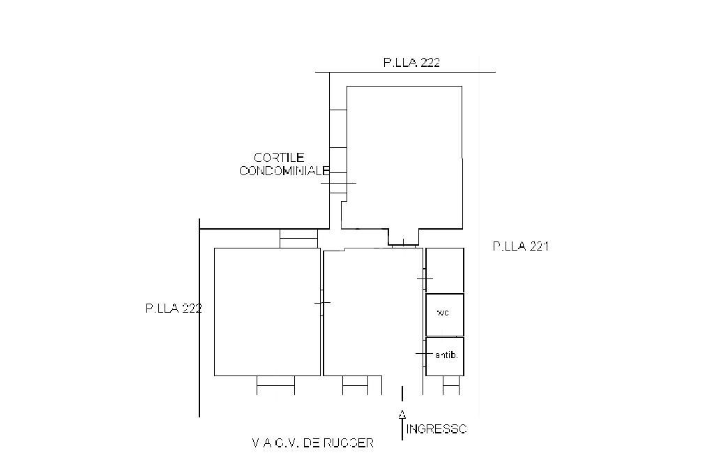
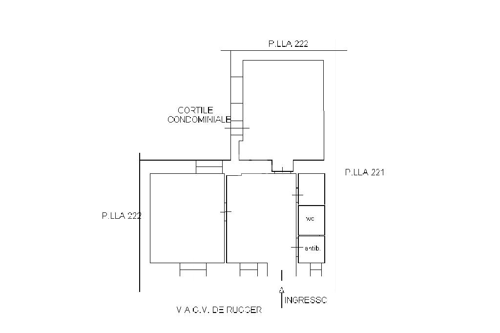
Ufficio con ingresso indipendente - ideale per studio professionale

Proponiamo in vendita luminoso ufficio (categoria catastale A/10) con ingresso indipendente, situato in zona tranquilla e ben servita.
L'immobile si compone da: ampia sala d'attesa, due comodi uffici e due bagni uno di esso con doccia, ideali per garantire comfort e funzionalità sia a clienti che a collaboratori. Lo stabile si presenta in ottimo stato e anche gli interni si presentano in ottime condizioni i materiali utilizzati sono di pregio come i rivestimenti di Villeroy & boch, lavabo in travertino e impianto bticino.

Grazie alla disposizione razionale degli spazi, l'immobile si presta perfettamente per studi professionali, ambulatori o attività direzionali.
Ottima opportunità per chi cerca una soluzione pronta all'uso, con accesso autonomo e spese di gestione contenute.

Caratteristiche principali:

Categoria catastale: A/10

Ingresso indipendente

Sala d'attesa, due uffici e due bagni

Ideale per studio medico, legale, tecnico o professionale

Zona comoda ai servizi e con facilità di parcheggio

Mostra tutto

Nelle vicinanze

Trasporto pubblico Trasporto pubblico
Pastena
Pastena
390 m
Mercatello
Mercatello
770 m
Stazione Centrale
Stazione Centrale
2,6 Km
Salerno
2,8 Km
Scuole Scuole
Scuole
390 m
Scuola Media Statale "Lanzalone Posidonia"
1,3 Km
Farmacia Farmacia
Ferrara
2,7 Km
Ospedali Ospedali
Casa di Cura Villa del Sole
2,7 Km
Supermercati Supermercati
Carrefour Market
540 m
Sole365
780 m
Pick up
1,1 Km
Todis
1,2 Km
Euro spin
2,0 Km
Negozi Negozi
OVS
2,7 Km
Maja desnuda
2,8 Km
United colors of Benetton
2,8 Km
Candida
2,8 Km
Bar Bar
A testa in giu (tabacos)
600 m
Ivan
2,0 Km
Grano Bakery Bar
2,6 Km
Bar
2,7 Km
Baraonda
2,9 Km
Ristoranti Ristoranti
II Gusto Della Notte Salerno
420 m
Pizzeria D’Asporo Mr. Crocche
690 m
Corner pizza
1,3 Km
Ivan
2,5 Km
Gastronomia Salumeria del corso
2,8 Km
Mostra tutto

Caratteristiche

Rif.:
61137264
Piano:
1 di 2 (Piano terra)
Arredamento:
Assente
Condizionamento:
Predisposizione impianto
Ascensore:
No
Riscaldamento:
Autonomo
Mostra tutto
Prezzo Prezzo
€ 180.000
Rata mutuo Rata mutuo
€ 850 / mese
Spese annue Spese annue
€ 5
Proponi il tuo prezzoProponi il tuo prezzo

Classe Energetica

G
G
G
G
G
G
G
G
G
EP globale non rinnovabile:
175.00 kW h/m² anno
EP globale rinnovabile:
175.00 kW h/m² anno
EP invernale del fabbricato:
EP estiva del fabbricato:
Anno di costruzione:
1966
Riscaldamento:
Autonomo
Tipo impianto:
A radiatori
Tipo alimentazione:
Metano

Ti interessa visionare l'immobile?

Fissa un appuntamento  Fissa un appuntamento

Richiedi informazioni

Clicca su Leggi per aprire l'informativa
* Questi campi sono obbligatori

Calcola il tuo mutuo

Semplice e senza impegno
Anticipo

( % )
Mutuo

( % )

pochi semplici passi

inserisci i tuoi dati
Questionario completato
Grazie per aver richiesto un appuntamento senza impegno con un nostro Consulente del Credito e Assicurativo.

Hai inserito correttamente tutti i dati necessari e a breve riceverai una e-mail con un link da convalidare per inviare i tuoi dati.
Affiliato
Studio Pastena Srl
Via Trento, 26 84129 Salerno (SA)

Il nostro staff


  • Luciano Capaccio
    Affiliato

  • Roberta Falcone
    Responsabile
Via Trento, 26 84129 Salerno (SA)
Zona: Pastena
Mostra su mappa
Orari: DAL LUNEDI AL VENERDI 9.00-13.00--16.00-20.00; SABATO 9.00-13.00.
Affiliato
Studio Pastena Srl
Via Trento, 26 84129 Salerno (SA)

2025 Tecnocasa Franchising S.p.A. - P. IVA 08365160152 - Via Monte Bianco 60/A 20089 Rozzano (MI). Ogni agenzia ha un proprio titolare ed è autonoma. Privacy policy | Policy utilizzo | Cookie policy