Attico in vendita

Salerno, Via sichelmanno - Pastena
€ 445.000
Prezzo aggiornato
5 locali 5 locali
160 Mq 160 Mq
2 bagni 2 bagni

Attico in vendita

Salerno, Via sichelmanno - Pastena

Descrizione annuncio

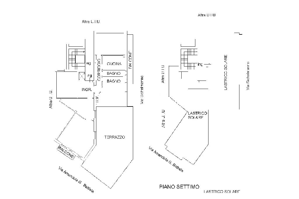
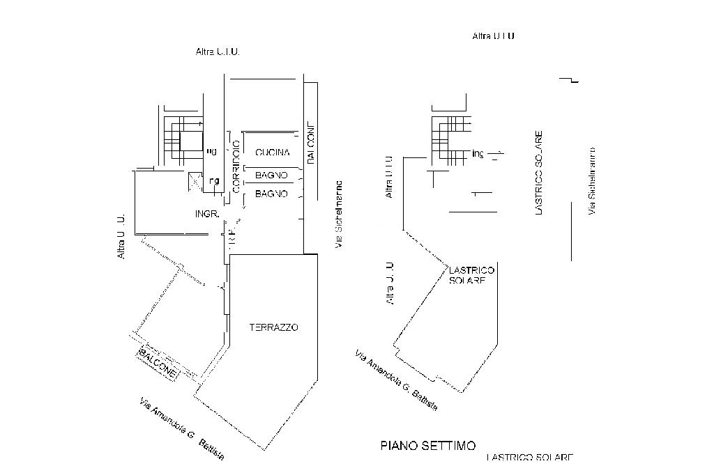
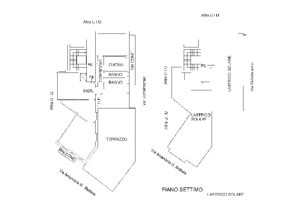
PASTENA- Attico

In zona centralissima a pochi passi dalla Piazza Caduti Civili di Brescia, proponiamo attico di ca 150 mq. L'immobile posto al sesto piano è dotato di ascensore, si compone da: cucina, salone con quatto punti luce, quattro camere, due bagni e ripostiglio . Ampio terrazzo a livello di ca 100 mq, e terrazzo di copertura sovrastante.

Mostra tutto

Nelle vicinanze

Trasporto pubblico Trasporto pubblico
Pastena
Pastena
330 m
Torrione
Torrione
780 m
Stazione Centrale
Stazione Centrale
2,3 Km
Salerno
2,6 Km
Scuole Scuole
Scuole
620 m
Scuola Media Statale "Lanzalone Posidonia"
1,0 Km
Scuola elementare Medaglie D'oro
2,8 Km
Scuola media Torquato Tasso
3,0 Km
Liceo Classico Torquato Tasso
3,0 Km
Farmacia Farmacia
Ferrara
2,4 Km
Ospedali Ospedali
Casa di Cura Villa del Sole
2,4 Km
Casa di Cura Tortorella
3,0 Km
Supermercati Supermercati
Carrefour Market
320 m
Sole365
580 m
Todis
1,2 Km
Pick up
1,3 Km
Euro spin
1,8 Km
Negozi Negozi
OVS
2,5 Km
Maja desnuda
2,5 Km
United colors of Benetton
2,6 Km
Candida
2,6 Km
Bar Bar
A testa in giu (tabacos)
710 m
Ivan
1,7 Km
Grano Bakery Bar
2,4 Km
Bar
2,5 Km
Baraonda
2,7 Km
Ristoranti Ristoranti
II Gusto Della Notte Salerno
320 m
Pizzeria D’Asporo Mr. Crocche
960 m
Corner pizza
1,1 Km
Ivan
2,3 Km
Gastronomia Salumeria del corso
2,5 Km
Mostra tutto

Caratteristiche

Rif.:
61043219
Piano:
6 di 6 con ascensore (ultimo Piano)
Balconi:
2
Terrazzi:
1
Camere da letto:
3
Arredamento:
Assente
Mostra tutto
Prezzo Prezzo
€ 445.000
Rata mutuo Rata mutuo
€ 2.057 / mese
Spese annue Spese annue
€ 1.200
Proponi il tuo prezzoProponi il tuo prezzo

Classe Energetica

G
G
G
G
G
G
G
G
G
EP globale non rinnovabile:
175.00 kW h/m² anno
EP globale rinnovabile:
175.00 kW h/m² anno
EP invernale del fabbricato:
EP estiva del fabbricato:
Anno di costruzione:
1970
Riscaldamento:
Autonomo
Tipo impianto:
A radiatori
Tipo alimentazione:
Metano

Prezzo ridotto di €1 (7%%)

Ti interessa visionare l'immobile?

Fissa un appuntamento  Fissa un appuntamento

Richiedi informazioni

* Questi campi sono obbligatori

Calcola il tuo mutuo

Semplice e senza impegno
Anticipo

( % )
Mutuo

( % )

pochi semplici passi

inserisci i tuoi dati
Questionario completato
Grazie per aver richiesto un appuntamento senza impegno con un nostro Consulente del Credito e Assicurativo.

Hai inserito correttamente tutti i dati necessari e a breve riceverai una e-mail con un link da convalidare per inviare i tuoi dati.
Affiliato
Studio Pastena Srl
Via Trento, 26 84129 Salerno (SA)

Il nostro staff


  • Luciano Capaccio
    Affiliato

  • Roberta Falcone
    Responsabile
Via Trento, 26 84129 Salerno (SA)
Zona: Pastena
Mostra su mappa
Orari: DAL LUNEDI AL VENERDI 9.00-13.00--16.00-20.00; SABATO 9.00-13.00.
Affiliato
Studio Pastena Srl
Via Trento, 26 84129 Salerno (SA)

2025 Tecnocasa Franchising S.p.A. - P. IVA 08365160152 - Via Monte Bianco 60/A 20089 Rozzano (MI). Ogni agenzia ha un proprio titolare ed è autonoma. Privacy policy | Policy utilizzo | Cookie policy